| 設備名稱型號 | · 900℃立式RTP&冷阱收集裝置 OTF-1200X-VT-φ60 |
| 立式高溫爐參數 | · 電源:AC220V 50HZ · 功率:3KW · 最高溫度:1200℃(<1h) · 連續工作溫度:1100℃ · 加熱元件:電阻絲 · 推薦升溫速率:≤10℃/min · 熱電偶:K型 · 加熱區長度:400mm 溫控系統: · 包含一款858P型溫度控制器 · PID自動控溫系統 · 智能化50段可編程控制 · 默認DB9PC通信連接端口 · 通過MET認證 · 可選購電腦溫度控制軟件(用于858P系列控制器)用于控制升溫曲線和導出數據 |
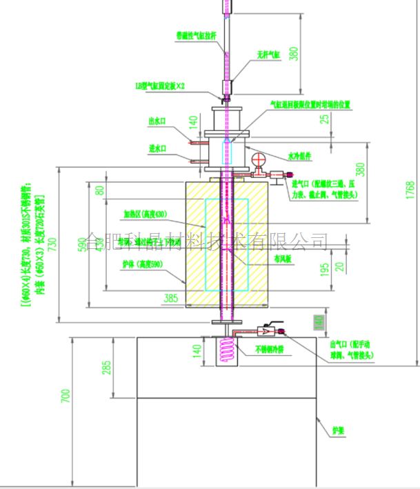
| 爐管 | · 設備包含兩根爐管,采用套管的方式安裝,石英管安裝在不銹鋼管的內部 · 爐管1:石英管,尺寸:外徑φ50*內徑φ40*長度780mm(含漏斗砂芯板) · 石英管內部焊接了一塊100目的漏斗砂芯,砂芯漏斗位置在爐膛中心位置向下20mm處 · 爐管2:310S不銹鋼管;尺寸:外徑φ60*壁厚4*長度930mm(含水冷套) |
| 快速加熱、冷卻和冷阱收集系統 | · 不銹鋼爐管靠近爐子加熱區上部安裝了一個水冷套組件,用于實現對樣品的快速加熱和快速冷卻,組件上的兩個水管接口,分別與水冷設備的進出水管連接;一個φ6.35mm的雙卡套接頭為進氣口,一個不銹鋼針閥控制進氣的通斷;安裝了一個量程為-0.1-0.15mpa的機械壓力表用于觀察爐管內壓力 · 水冷組件頂端的接口連接了一個無杠氣缸,氣缸行程:450mm,氣缸內部有一根耦合拉桿,拉桿一直延伸到爐管的內部,拉桿末端有一個掛鉤用于懸掛樣品坩堝,坩堝尺寸:外徑φ35*壁厚5*高100mm;氣缸向下時,坩堝位于爐膛的中間位置,實現對坩堝內樣品的快速加熱功能;氣缸退回時,樣品坩堝位于水冷組件內,實現對樣品的快速冷卻功能。(當爐內溫度升溫到800℃,放置在水冷套處的樣品溫度<100℃) · 爐管底部法蘭與一個冷阱罐連接,冷阱罐上有一個排氣口,一個球閥控制排氣的通斷;冷阱罐內部帶有螺旋形盤管,使氣體中的焦油等物質能收集在冷阱罐中。(冷阱罐外部可以根據工藝需要配套水冷套或液氮干冰冷卻) |
| 水冷設備(選配) | · 型號:KJ-5000 · 工作電壓:AC 220V 50HZ · 工作電流:0.6-3.9A · 制冷量:2361Btu/h · 壓縮機功率:300W · 水箱容量:6L · 最大流量:16L/min · 凈重:24 Kg |
| 設備外形尺寸 | · 620mm(L)* 620mm(W)* 2400mm(H) |
| 重量 | · 約140KG(含高溫爐重量) |
| 質保 | · 一年質保期,終生維護 · 特別提示: 1、耗材部分如加熱元件、石英管、樣品坩堝等不包含在內 2、因使用腐蝕性氣體和酸性氣體造成的損害不在保修范圍內 |
使用注意事項 | · 爐管內氣壓不可高于0.02MPa(相對氣壓) · 由于氣瓶內部氣壓較高,所以向爐管內通入氣體時,氣瓶上必須安裝減壓閥,為了確保安全,建議使用壓力低于0.02MPa,建議在本公司選購減壓閥,本公司減壓閥量程為0.01MPa-0.1MPa,使用時會更加精確安全 · 對于樣品加熱的實驗,不建議關閉爐管法蘭端的抽氣閥和進氣閥使用。若需要關閉氣閥對樣品加熱,則需時刻關注壓力表的示數,若氣壓表示數大于0.02MPa,必須立刻打開泄氣閥,以防意外發生(如爐管破裂,法蘭飛出等) · 我們不建議客戶使用易燃易爆和有毒的氣體,如果客戶工藝原因確實需要使用易燃易爆和有毒氣體,請客戶自行做好相關防護和防爆措施。由于使用易燃易爆和有毒氣體而造成的相關問題,本公司概不負責 |
